
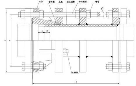
VSSJAFG(CF)型單法蘭松套傳力接頭
VSSJAFG(CF)型單法蘭松套傳力接頭性能特點:松套傳力接頭是在法蘭松套補償接頭的基礎上增設法蘭短管及傳力螺桿而成,次類型的補償接頭與松套補償接頭和松套限位補償接頭不同的是它的補償量是指在安裝及拆卸過程中的調…
鞏義市新躍供水材料有限公司專業生產各種閥門配套的雙法蘭限位伸縮器、雙法蘭傳力接頭等,型號齊全,質量保證,支持來圖定制。
(1)VSSJAFG(CF)型單法蘭松套傳力接頭均按國標要求加工制作,部分口徑備有現貨,具體咨詢客服QQ:2172152931或者添加微信13140182505
(2)隨貨發檢驗報告、合格證等資料。
(3)承接各種大型工程,如:【中國水利水電第十一工程局有限公司安裝分局武漢泵站DN2800\DN3200柔性、剛性防水套管;蘭州市政建設集團有限責任公司;合肥地鐵2號線;江蘇江都建設集團有限公司;陜西華海水利工程有限公司;新疆和山巨力化工有限公司;北京興順康蘭工程機械有限公司等等】
(4)產品型號過多,價格無法一一注明,下單前請咨詢旺旺或者電話:13140182505
······以下圖片均為新躍供水廠家實景實地拍攝,盜圖必究!······


性能特點:
松套傳力接頭是在法蘭松套補償接頭的基礎上增設法蘭短管及傳力螺桿而成,次類型的補償接頭與松套補償接頭和松套限位補償接頭不同的是它的補償量是指在安裝及拆卸過程中的調節量,一旦將所有的螺母擰緊,它是剛性連接的,可以傳遞軸心力,從而保護閥門、泵等設備。
傳力接頭是泵、閥門等設備與管道連接的新產品,通過全螺栓把它們連接起來,使其成為一個整體,并有一定的位移量,這樣就可以在安裝維修時,根據現場安裝尺寸進行調整,在工作時,可以把軸向推力傳還至整個管道。這樣不僅提高工作效率,而切對泵、閥們等設備起到一定保護作用。
CF型單法蘭松套傳力接頭是有松套伸縮接頭和短管法蘭、傳力螺桿等構件組成,它能傳遞被連接件的壓力推力(盲板力)和補償管路誤差,不能吸收軸向位移。重要用于泵、閥門、管路等附件的松套連接。
安裝簡要說明
CF型單法蘭松套傳力接頭適用于一面與法蘭連接,一面與管道焊接。安裝時調節產品兩端與管道或法蘭的安裝長度,安裝和焊接完畢后,對角依次均勻擰緊壓蓋螺栓,使其成為一個整體,并有一定的位移量,方便安裝維修,可根據現場尺寸進行調整。在工作時可以把軸向推力傳遞至整個管道。
傳力接頭分類有:
單發蘭松套傳力接頭、雙法蘭松套傳力接頭、可拆式雙法蘭松套傳力接頭。
傳力接頭材質:主要有Q235碳鋼、不銹鋼、鑄鋼、球墨鑄鐵等。不同的用途選用不同的材質和型號。
CF型單法蘭松套傳力接頭公稱通經:DN50-DN3200
CF型單法蘭松套傳力接頭工作壓力:0.6-1.6MPA
CF型單法蘭松套傳力接頭使用介質:水、污水
CF型單法蘭松套傳力接頭密封材料:NBR
CF型單法蘭松套傳力接頭制造標準:GB12465-2007
|


VSSJAF(C2F)型雙法蘭傳力接頭
VSSJAF(C2F)型雙法蘭傳力接頭功能介紹:雙法蘭傳力接頭是在法蘭松套補償接頭的基礎上增設法蘭短管及傳力螺桿而成,次類型的補償接頭與松套補償接頭和松套限位補償接頭不同的是它的補償量是指在安裝及拆卸過程中的調節…

<新躍解說>怎樣減少卡箍式橡膠接頭磨損
怎樣減少卡箍式橡膠接頭磨損什么產品都是有壽命的,管道產品也是如此,今天教給大家怎樣減少和預防橡膠接頭產品的磨損:1.疲勞磨損,與摩擦面相接觸的硫化膠表面,在反復的過程中受周期性的壓縮、剪切、拉伸等變形作…

新躍DN125伸縮接頭發往齊齊哈爾
伸縮接頭使用范圍廣泛,安裝方便,是閥門連接的重要管件工具,新躍生產的伸縮接頭均采用優質Q235A碳鋼材料生產,抗壓性能強,深受用戶信賴,近日,我公司生產一批DN125伸縮接頭銷往齊齊哈爾建筑工地,今天新躍來分享…

伸縮器質保期內有質量問題可退貨的廠家
伸縮器質保期內有質量問題可退貨的廠家鞏義市新躍供水材料有限公司是專業生產伸縮器、橡膠接頭、防水套管、鴨嘴閥的廠家,我廠家生產的產品在市場上知名度是相當高的,質優價廉。伸縮器是泵、閥門,管道等設備與管道…
橡膠接頭 撓性橡膠接頭…
橡膠接頭、卡箍橡膠接頭、大翻邊橡膠接頭新躍橡膠接頭廠家,專業生產,量大從優!
不銹鋼雙法蘭限位伸縮…
不銹鋼雙法蘭伸縮接頭是由本體、密封圈、壓蓋、伸縮短管等主要部件組成。在松套伸縮接頭原有性能的基礎上增設限位裝置,在最大伸縮量處用雙螺母鎖定。管道在允許的伸縮量中可以自由伸縮,一旦超…
可曲撓橡膠接頭
可曲撓橡膠接頭簡介可曲撓橡膠接頭又叫做橡膠管軟接頭、柔性橡膠接頭、橡膠軟接頭、橡膠接頭、高壓橡膠接頭、橡膠減震器、補償器等。按連接方式分松套法蘭式、固定法蘭式和螺紋式3種;按結構可分…
人防穿線密閉套管
穿線密閉套管說明:1、當迎水面為腐蝕性介質時,可采用封堵材料將縫隙封堵;2.套管穿墻處如遇非混凝土墻壁時,應局部改用混凝土墻壁,其澆注范圍應比翼環直徑(DS)大200,并且必須將套管一次澆固…